Право на покупку квартиры.

$ 250,000 ЦЕНА

ПОДЕЛИТЬСЯ В СОЦ. СЕТЯХ:

  • Бат ЯмГород
  • продажаРаздел
  • квартираТип недвижимости
  • 4Комнат
  • 6Спальных мест
  • 14Этаж
  • 33Всего этажей в доме
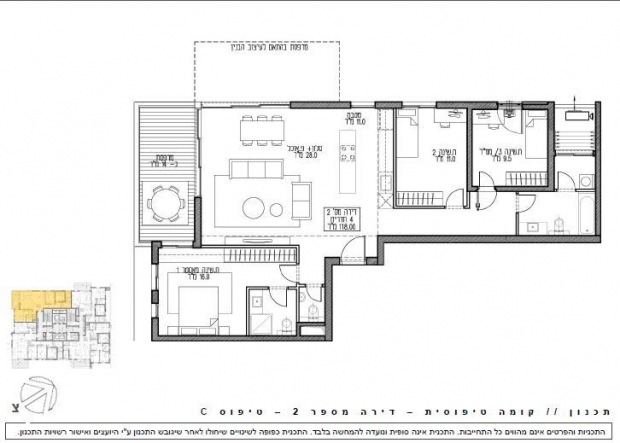
  • 118 m²Площадь

ОПИСАНИЕ
На продажу право на покупку 4 ком. квартиры в новом проекте "Мигдаль аям" в новостройках юго-западной части Бат Яма. Квартира имеет 118 кв.м.+открытый балкон - 14 кв.м., лифт, стоянка, подсобное помещение, 14 этаж. ( Плюс 8 этажей под офисы и торговые центры). Вид на море.
В этом же доме есть право на покупку 3 ком. квартиры.

ЧТО НАХОДИТСЯ РЯДОМ?
Рядом море, променад, городской парк. Вся инфраструктура.

УДОБСТВА
  • Кондиционер
  • Отопление
  • Лифт
  • Доступно людям с физическими недостатками
  • Кухня
  • Бесплатная парковка
  • Спортзал
  • Домофон
  • Подходит для детей/семей

АДРЕС
Комемиют

Нет отзывов


בניית אתרים פיתוח על ידי נקודה פסיק נקודה פסיק

© Isramaxhome